Cerradura con llave de seguridad 547

La cerradura con llave de seguridad 547 es una cerradura de doble intervención diseñada para depósitos y sistemas de custodia que requieren control de acceso mediante dos usuarios o dos niveles de autorización. Su sistema de doble control garantiza un alto nivel de seguridad en instalaciones donde se necesita supervisión en la apertura.

Solicitar más Información
SKU: 05c8c314de8c Categoría:
Descripción

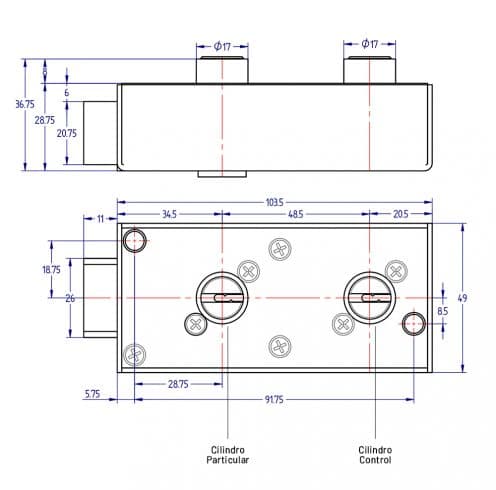
Cerradura de doble control 547 para depósitos de seguridad

La cerradura con llave de seguridad modelo 547 es un sistema de cierre mecánico diseñado para depósitos y equipos de custodia donde se requiere un sistema de doble intervención. Este tipo de cerradura permite que la apertura del mecanismo solo se realice mediante la acción combinada de dos sistemas de control, aumentando el nivel de seguridad.

Las cerraduras de doble control son ampliamente utilizadas en sistemas de seguridad donde es necesario que dos personas intervengan en el proceso de apertura, garantizando así un mayor control sobre el acceso a compartimentos o depósitos.

Sistema de doble intervención

El sistema de doble intervención permite gestionar dos niveles de control:

  • Control principal, que actúa como sistema de supervisión o autorización.
  • Control particular, utilizado por el usuario o responsable operativo.

Esta configuración permite aplicar protocolos de seguridad en instalaciones donde el acceso debe ser supervisado o autorizado por más de una persona.

Aplicaciones habituales

  • Depósitos de seguridad
  • Sistemas de custodia de valores
  • Equipos de control de efectivo
  • Armarios de seguridad
  • Instalaciones profesionales de seguridad

Las cerraduras de seguridad utilizadas en entornos profesionales permiten mejorar el control de accesos y proteger sistemas de almacenamiento sensibles.

Dentro de la categoría de cerraduras con doble control se incluyen diferentes modelos diseñados para aplicaciones donde la apertura requiere intervención doble o control compartido.

Recorrido de palanca

La cerradura dispone de un recorrido de palanca de 11 mm, lo que permite accionar el mecanismo de cierre con precisión y garantizar el correcto bloqueo del sistema.

Características técnicas

Modelo de llave AGA-12
Nº de combinaciones de control 400
Nº de combinaciones particular 3050
Acabado Niquelado
Peso 524 g
Shipping & Delivery

CONDICIONES DE ENVIO

Todos los envíos se realizan con una agencia de transportes especializada en el envió de Armeros y Cajas fuertes. 

El precio incluye el envió a pie de calle. En el caso de querer que el envió se realice hasta la ubicación final se tendrá que valorar con la empresa de transportes.

¿QUÉ NO INCLUYE EL TRANSPORTE?

Hay varios servicios que no están incluidos en el transporte:

  • Instalación
  • Suministro en domicilio o ubicación final
  • Puesta a punto